Описание
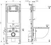
Универсальная рамная инсталляция Profix надежная и качественная инсталляция по оптимальной цене. Подходит для всех подвесных унитазовПолный комплект, необходимый для установки унитаза: рама, бачок, крепежи Крепится в капитальную стену и полОпределяется механизмом системы инсталляции/скрытого бачкаОбъем смывн. бачка: 3 и 6 лПодвод воды сверхуДиаметр слива: 9 смМонтажная глубина: 21 смМонтажная высота: 114 смМежосевое расстояние под крепеж. шпильки: 18 / 23 смГарантия: 10 летРоссия